In my quest to find a great place to model, I’m refining my focusing on an area I consider to be “home”. Home is the area between the south end of Minneapolis and the north end of Mason City. I never lived there but I spent a month up in Chanhassen, Minnesota visiting relatives each summer. I learned very quickly to love life there.
The Milwaukee Road terminal through Mason City was cool. The Milwaukee had all the basics in Mason City, some of which can be seen in the map excerpt below. In addition to the small yard and roundhouse, there were crossings with Chicago & North Western, Chicago Great Western, Minneapolis & St. Louis, the Mason City & Clear Lake electric line, and Rock Island. A secondary Milwaukee line up to Lyle, Minnesota originated here, and there were connections to large cement plants.
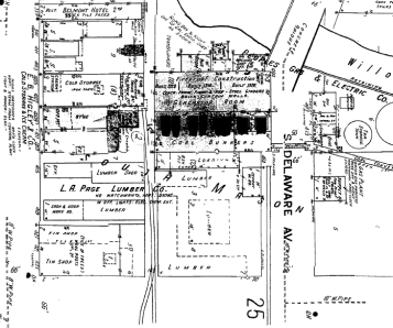
The area I’m considering is in the inset, below. This is Milwaukee’s short branch into the city that served the road’s freight house and other customers downtown.
Below. The Milwaukee Road map is courtesy John Greedy via Frank Hodina.

Here’s a great photo, below, from Clark Propst’s extensive collection of Mason City photos. We’re looking directly east. The branch to downtown can be seen at the bottom left.
If you’re looking for a small yard to model–a yard that has everything–this is it. About ten yard tracks, some industries on each side, and interchanges on each end–with more industries just out of sight at the interchanges. Don’t forget the little branch into town. Perfect!

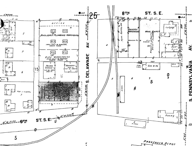
Below. Here’s the entire Sanborn map series for the downtown branch below. At bottom, the track curves off the mainline and stub-ends at the lumber dealer immediately below. We all know that Sanborn maps aren’t entirely accurate when it comes to railroad tracks, but they’re close. In this case, you can see how short the branch was–just a few city blocks.




Below. Clark provided this great aerial photo showing the freight house at bottom left and some of the other customers downtown. The powerhouse at center was also served by the Milwaukee although the tracks aren’t drawn on the Sanborn map.

Below. A grainy closeup reveals a few more details. The freight house is at left center of course. The track that curves off to the grocery warehouse at the top of the photo can’t be seen, but the right-of-way can—note the triangular-shaped building at the top left. Tracks served all the large buildings in the photo. The L-shaped lumber yard can be seen. The track to the powerhouse curved toward the gas tank, then switched back into a car-dump adjacent to the powerhouse.

Below. Here is an excerpt from the Milwaukee company map. It shows the tracks beyond the freight house in detail, including the switchback to the powerhouse. Those tracks aren’t depicted on the Sanborn map.

Here’s a nice photo, also from Clark, showing the freight house from the power plant. It’s a nice view, but why would anyone ever take such a photo?

One more note about the photo above. According to Clark, prior to 1935 there were streetcar tracks all over this area. A car shed can be seen in the left foreground. The tracks were torn up sometime in 1935. Cars lined up at the freight house can be seen below in this 1930s view.

Over on the Proto Layouts list I had a long conversation with Clark and a guy named Bob Drenth (we all know him as “Railroad Bob”). Bob is a retired Milwaukee Road guy and shared some stores about operations in Mason City. Here are some words from Bob.
Hi John,
Coal was delivered to power company between 1935 and 1960 by the Milwaukee. There was a curved track off of the lead that went in the alley behind Gambol-Robinson [one of the large building adjacent to the freight house]. There’s a building, which still exists at Corner of 5th St. and Federals, with a “notch of the NW face of the building so the MCCL electric line could make the turn into People Gas & Electric Coal yard. That build is a three story building, while Gambol-Robinson was a five-story warehouse, and the building next to it was a beer warehouse. All are part of the Zilge’s Appliance store now.
The cement dealer across from the freight house was gone by 1969. I expect that company only dealt with bag cement in it’s day and not bulk cement we have become use to now.
You asked about crossing sheds and crossing guards. I’m not sure what to expect in 1950s but by 1969 there were no crossing guards. Our switch crews flagged as needed. I recall 5th and 6th Streets were both one-way streets and Very busy (as U.S. 18 used them to get through Mason City). Also busy was Federal Ave. That was a four-lanes-wide highway and part of U.S. 65, running north-south through Mason City.
Old heads had stories of standing in middle of 6th Street trying to flag traffic and cars driving around them just in front of the move. One old head claimed he put his lantern through the front windshield of a motorist–but the driver never slowed down or stopped!
You should find the only runaround track on the very left side along Delaware Avenue. This was part of the “lead” between 8th Street and 6th Street. Again, I don’t recall ever being on it. Old heads told of spotting beer cars there; the distributor (Hamm’s) had a building on the west side of the street and I heard they rolled kegs across the street to his warehouse. But you’re right it was easier to line up deliveries at the yard on the scale track and take them downtown on correct side of engine.
There was no “interplant switching” either. You either delivered or pulled a car from it’s location. In other words, empty cars were not reused.
From Dr. Marty’s photos [those photos are included at bottom] you can see Milwaukee had customers on the switchback. You had to shove by Gambol-Robinson toward Woodford Wheeler’s Lumberyard, then reverse back into the lead that went in the alley between Delaware and Federal. Just south of 6th Street was a four-story warehouse that handled International Harvester Parts.
John Deere had their parts house on a spur track near the yard. To reach it crew needed to cross 6th St. twice–we had to block the street only once. It burned one Saturday afternoon in August 1969. I could see the smoke miles away, as I drove to work the Afternoon Switch engine.
The longest yard track at the main yard in town held 40 cars (between Federal and South Carolina Avenues). The switch lead would hold about 25 cars plus an engine. There were three crossovers between the main track and the #1, or “Straight Lead” through the yard. Many customers were located on north and south sides or the ends of the yard. I’ve done some math; you’d need almost 90 feet long by six feet wide to model the complex exactly.
Thanks Bob! Man, that is priceless information.
Below. Here’s a fun photo, showing a B&O M-53 at the freight house that got pushed too far, and went across the street. Railroad Bob mentioned Woodford Wheeler’s Lumberyard; it can be seen in the background where that MP double-door car of lumber is being unloaded.

This Soph Marty photo, below, shows the local switcher at work across the street from the freight house. The beer distributor building is to the right of the engine. The building in the background is the bottling plant. Thanks to Clark Propst for sharing these photos from his collection.

Below. Same location, a few minutes later. Love those Baldwins!

Below. This photo below shows the switcher moving between the grocery warehouse on the left and the bottling plant on the right. The stacks in the background belong to the power plant.

Man, this would make a nice layout.
For now, the Ackley layout is stored; it’s fate to be determined later. Here’s one more shot from the last ops session in September.

The future is exciting. I’ll sketch up some track plans and get them out to you guys soon.
Merry Christmas! – John G

Baldwins, mmm!
It’s one of the things that sold me on the I&M Elevator District in Minneapolis for my Hiawatha Avenue layout. I also wanted grain elevators, and to model 1975. The Baldwins were retired in 1976 with the arrival of the MP15ACs. I kept coming back to modern day shots of the district as being operated by the Minnesota Commercial and thought it would look fantastic with Baldwin switchers.
LikeLike